Schalthebel Atlas 1200

Allgemeine Dinge/Sachen
Antworten
Markus.w
Beiträge: 78
Registriert: So 15. Nov 2020, 13:25

Schalthebel Atlas 1200

Beitrag von Markus.w » Mi 15. Sep 2021, 19:16

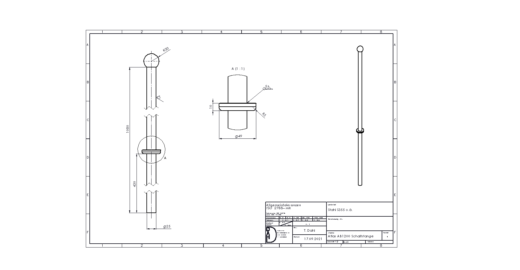
Hat hier jemand Bilder und Maße vom Schalthebel bzw Rohr für die Gelände/Straßengang Schaltung



Theodor
Beiträge: 123
Registriert: So 30. Aug 2020, 10:55

Re: Schalthebel Atlas 1200

Beitrag von Theodor » Mi 15. Sep 2021, 22:20

Hi,

ich mache ne Skizze und ein Foto, mache morgen vermutlich eh was am Bagger

Gruß Theodor



Theodor
Beiträge: 123
Registriert: So 30. Aug 2020, 10:55

Re: Schalthebel Atlas 1200

Beitrag von Theodor » Fr 17. Sep 2021, 09:55

Hi,

anbei eine Zeichnung vom Schaltstab, ist aus Vollmaterial, kein Rohr.
Schaltstab.PNG
Gruß Theodor
Dateianhänge
Schaltstab.PDF
(38.19 KiB) 496-mal heruntergeladen



Theodor
Beiträge: 123
Registriert: So 30. Aug 2020, 10:55

Re: Schalthebel Atlas 1200

Beitrag von Theodor » Fr 17. Sep 2021, 09:57

Und noch zwei Fotos...
PXL_20210917_075609882.jpg
PXL_20210917_075624397.jpg
Gruß Theodor



Markus.w
Beiträge: 78
Registriert: So 15. Nov 2020, 13:25

Re: Schalthebel Atlas 1200

Beitrag von Markus.w » Fr 17. Sep 2021, 17:54

Danke für die mühe !



Markus.w
Beiträge: 78
Registriert: So 15. Nov 2020, 13:25

Re: Schalthebel Atlas 1200

Beitrag von Markus.w » So 19. Sep 2021, 12:40

Welche Farben wurden verwendet für die Restauration vom Atlas 1200 ?



Theodor
Beiträge: 123
Registriert: So 30. Aug 2020, 10:55

Re: Schalthebel Atlas 1200

Beitrag von Theodor » So 19. Sep 2021, 15:57

Bei mir?

ich hab alles mit mipa PU Lack lackiert.
Diesen Hebel zugegebener Maßen nicht besonders schön, der ist nur gepinselt.



Markus.w
Beiträge: 78
Registriert: So 15. Nov 2020, 13:25

Re: Schalthebel Atlas 1200

Beitrag von Markus.w » So 19. Sep 2021, 16:21

Wo bekommt sie her und wie heißen sie ?



Theodor
Beiträge: 123
Registriert: So 30. Aug 2020, 10:55

Re: Schalthebel Atlas 1200

Beitrag von Theodor » So 19. Sep 2021, 21:07

Hi,

zum pinseln/rollen und spritzen nehme ich Mipa PU 250-50 und für Strukturierte Flächen (lässt sich nicht pinseln) Mipa PU 300-70.

Oder auf den Maikäfer bezogen Anthrazit ist PU 250-50 und Orangen ist Mipa PU 300-70.

Bestelle ich normalerweise bei lackundfarbe24.de oder wenn es schnell gehen muss für einen wahnsinns Preis beim örtlichen Lack Händler :?

Gruß Theodor



Antworten